棋牌平台,棋牌官网网站,棋牌游戏APP下载而当散点式的地王与明星楼盘不断雕刻局部价格天花板时,其背后实则遵循着一套更为实际且统一的价值叙事——
顺着稀缺性这一罗盘,我们便能清晰地洞察,真正的价值灯塔始终锚定于那片不可再生的核心资源:滨江住宅
而上海人又恰恰对滨江住宅的要求近乎极致,既要占位城市重要规划点,又要有超出一般豪宅调性的品质,所以滨江住宅一直都是贵奢的代表。

在上海一线滨江板块地图中,陆家嘴,黄浦滨江、徐汇滨江等地新房单价都已突破19万/㎡
。今年6批次,北外滩地块也紧随其上,溢价率46.3%,预计售价约19万/㎡左右,成为今年最炙手可热的滨江板块之一。
答案显而易见:北外滩一直都是时代的佼佼者,它既是百年前海纳百川的港口,又是今日的世界会客厅,还是上海的未来发展引擎。
所以,当人们以为北外滩新房售价即将冲向19万/㎡、未来买入北外滩将付出巨大经济代价时,一个巨大的历史性机遇,【中粮北外滩壹号】
出现了!均价14.38万,总价约3000万起,这个价格无疑是北外滩错过再无的抄底机遇!

中粮大悦城上海第五座壹号系,“世界S湾壹号作品”——【中粮·北外滩壹号】开盘热卖中!
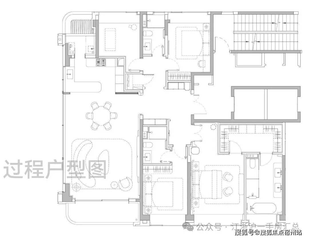
飞机户型,三开间朝南,南北通透,动静分区,通风采光俱佳。独立玄关做足私密性和仪式感;
LDKB一体化设计的客餐厅面积达到约55㎡,方正大气。主卧套房尺度豪奢,可供业主配置步入式衣帽间,卫生间做到双台盆+大浴缸+独立淋浴

私享电梯厅独立入户,户型尺度进一步升级,当今顶豪新盘中极为稀缺的四开间朝南。
㎡,给一家人提供了阔绰的交流空间;约270°环幕景观设计,带来极好的采光,并且高区可以直面陆家嘴城市天际线+黄浦江景观,视野相当震撼!
主卧大套房设计带超大主卫和衣帽间,面积约50㎡,尺度感与市面上近300㎡的顶豪拉平。
室内设计由中国现代室内设计领域的领军人物——梁志天亲自打造。在材质选用上,延续了壹号系的高端标准,大量运用奢石、高难度弧形工艺以及国内外顶尖品牌。
的净水三合一水龙头和一体式大水槽、霍尼韦尔的前置过滤器、全屋软水以及末端净水器系统、来自意大利法罗力燃气热水器、德国唯宝卫浴、当代龙头及花洒......还有全屋华为智能家居系统配置。这一套组合,是真正意义上的顶豪序列配置!☑️☑️中粮北外滩壹号售楼处电话:☑️☑️
高层共90套、产品面积段约180-228m²,风貌别墅共118套,产品面积段约130-350m²,其中主力建面约m²(占比约83%)
,高层主体以仿红砖陶板+古铜色铝板+白色石材+玻璃幕墙的高标准结合,来完成建筑的美学表达。
约1800㎡的私享顶奢会所。按户均占有会所资源计来算,这在当今顶豪圈是顶尖的水平。


标杆——CCD香港郑中设计事务所执笔。目前看到的效果图,体现出一股醇正的老钱世家风,设计品位远超市场同类豪宅。
社交宴会区内,私宴、茶室与专属酒吧一应俱全,满足业主商务应酬到亲友小聚的各种场景需求。


雅集共聚区内,除了常规的阅读,棋牌等功能外,甚至设有一个舞蹈录音室,配置之高,沪上少见。
从百年梧桐下的静谧巷道,到充满未来感的艺术庭院,共同构成一个鲜活立体的生活剧场。
交通方面:项目周围环绕三条地铁,步行约360米到4、12号线号线(在建)提篮桥站。

地铁出行到人广和陆家嘴都只需要4站。未来,随着在建的南北大动脉19号线贯通,可以直达世博、前滩等多个核心滨江段。

项目出门就是高浓度的国际生活主场,步行可达北外滩来福士(约600米)、瑞虹天地太阳宫(约350米)、白玉兰广场(约1公里),未来还将会兴建全球最火的时尚奢侈品商场之一的SKP。
半径3km内,还可以同时覆盖外滩、陆家嘴、苏河湾等“黄金三角”的繁华商业!


周边学府众多,优质教育资源密集。北侧的长青学校是老牌的九年一贯制公办重点,南侧的上海中学国际部是知名民办名校,距离新华初级中学

(常年四校八大预录人数上百),新复兴初级中学,这两所虹口的顶尖民办学校也都在直线KM内(新房不承诺对口学校,具体以实际为准)。
医疗方面:周边有复旦大学红房子妇产科医院,守护着每一个家庭的人生重要时刻。、以及三甲新华医院、上海市第一人民医院为健康生活保驾护航。

生态休闲:周边有22公顷无车漫步区、3.5万平方米航海公园与中央绿地相融,3.4公里滨江休闲岸线
「中粮北外滩壹号」作为中粮大悦城上海第五座“壹号系”标杆作品,堪称集万千优势于一身、上海高端住宅的典范。是有史以来第一个低密风貌壹号系,也是上海市中心12个历史风貌保护区中唯一一个成片风貌开发地块中的壹号系。
时间往前倒推15年,中粮大悦城围绕上海“一江一河”战略,布局5座壹号系豪宅作品,每一个都是板块标杆豪宅,拥有板块独立定价权!
「中粮北外滩壹号」容积率仅1.95,整个社区仅208户,包含90户云端大宅和118户风貌别墅,


☑️☑️中粮北外滩壹号售楼处电话:☑️☑️顶豪御用设计天团打造调性十足!


会所由全球顶奢酒店设计领域的标杆——CCD香港郑中设计事务所亲笔执笔。其精髓在于,将“酒店式的归家礼序”与“俱乐部式的圈层生活”融为一体,让每日“回家的路”,进阶为一场贯穿始终的、极具仪式感的生活体验。

为让公区真正成为业主家庭的延伸与生活聚场,设计团队针对高净值人群的真实生活轨迹,精准定制了全维功能场景:

雅集共聚区:奢华的舞蹈录音室与学习阅读等多功能空间,为圈层交流与家庭娱乐提供了理想场域。

从目前已释出的效果图可见,其设计品位远超市场同类豪宅。CCD将其于顶级酒店中积淀的美学功力注入于此,在材质、光影与艺术的交织中,营造出一种不流于表象的、经得起时间品鉴的奢华气韵。

这方藏于地下的心奢之境,不仅是项目硬核实力的彰显,更是为中粮·北外滩壹号的业主,构建了一个真正属于他们的、静谧而尊贵的“第二客厅”。

景观设计以「拾光映象」理念,用镜面水景、古木纹石材与艺术雕塑,重构源福里往昔的街巷记忆。


特别设计了八大映象典藏场景景观节点,有百年梧桐下的静谧巷道串联各景观节点,还有充满文化积淀的海派艺术庭院等,营造出精致、典雅的高阶生活氛围。

通过棋盘式巷弄布局串联公共与静谧区域,利用庭院,露台、下沉式花园等打造多层次空间,营造“建筑可阅读、城市可漫步 ”的高定体验,享受“进退有度”的海派私属生活。
这一切共同构筑了一个将功能、美学与自然无界融合的高品质生活场域,更是都市精英人群未来的丰富生活剧场!


☑️☑️中粮北外滩壹号售楼处电话:☑️☑️「中粮·北外滩壹号」即将入市的高层户型建面约185-228㎡纯粹4房,尺度感相当奢阔!高层户型均为两梯两户独立电梯厅配置,隐私性与尊崇感拉满!全落地窗设计,270°环幕大边厅户型相当惊艳!超大窗墙比+双套房格局形成多维观景的极致效果!仅90套,珍藏属性拉满!

据了解,即将开放的约228㎡样板间,也是一比一兑现实景,精装标准展现超绝产品实力!感兴趣的朋友可以预约参观起来~
例如宝格丽大理石打造的西厨岛台、铂浪高的净水三合一水龙头和一体式大水槽、霍尼韦尔的前置过滤器、全屋软水以及末端净水器系统、来自意大利的燃气热水器品牌法罗力、德国唯宝卫浴、当代龙头及花洒等等顶豪超配精装皆在眼前!甚至还有全屋华为智能家居系统配置,
目前的北外滩已构建起以航运和金融为双引擎 的现代化产业体系,已汇集4700余家港航企业、2100余家金融机构,资产管理规模超过8万亿元。已从昔日的老码头和航运一条街,蜕变为一个初具规模的未来都市发展新标杆!
项目步行可至北外滩核芯商业来福士广场、滨江步道等,半径约2.5km覆盖外滩、陆家嘴、瑞虹、苏河湾等顶层繁华配套!饭后在贯通开放的3.4公里滨水岸线公顷中央绿轴中休闲漫步,将是日常生活的一部分,未来丰富惬意生活方式令人艳羡!


周边有海上海商业街,宝地广场,滨江国际广场、来福士广场以及开发商自有商业综合体东方渔人码头等,让你的未来生活更加便利!


另外,地块距离黄浦江直线距离仅约几百米,步行可达北外滩滨江绿地公园,与陆家嘴隔江相望;除此之外,
东面约1.2km是上海江浦公园,北面约1.5km是占地264亩的上海和平公园,坐拥上海市中心难能可贵的生态资源。

教育方面:地块周边知名学校众多,拥有全龄段的学校在附近:临潼路幼儿园、舟山路幼儿园、飞虹路幼儿园、保定路第一小学、长青学校、上海市市东中学、上海市霍山学校、上海市市东实验学校、澄衷初级中学、继光高级中学等等。*关于教育资源的报道及介绍,并不表示开发商对此提供保证。学校开学时间、招生条件、收费标准及招生区域等须以政府及学校最新政策为准。


「中粮北外滩壹号」作为中粮大悦城上海第五座“壹号系”标杆作品,堪称集万千优势于一身、上海高端住宅的典范。

时间往前倒推15年,中粮大悦城围绕上海“一江一河”战略,布局5座壹号系豪宅作品,每一个都是板块标杆豪宅,拥有板块独立定价权!
「中粮北外滩壹号」容积率仅1.95,整个社区仅208户,包含90户云端大宅和118户风貌别墅,

☑️☑️中粮北外滩壹号售楼处电话:☑️☑️风貌别墅则复刻海派石库门的韵味,分成了三大组团,以当代设计笔法重构门头、放大窗墙比与院落尺度,提升居住舒适度;设计师更以石库门传统格局为骨架注入西洋新古典主义的精致魂魄,辅以Art Deco的现代锋芒,尽显传世级臻藏孤品的贵族基因。

「中粮北外滩壹号」承袭中粮大悦城壹号系顶豪基因,特邀全球豪宅设计天团打造,呈现出中粮壹号系顶豪力作!堪称当下顶豪品质社区匠心之选~约1800㎡海派高奢立体景观会所

更难得的是,项目并未因地块规模而降低「壹号系」的顶豪标准,反而以突破性的“掘地三层”之魄力
会所由全球顶奢酒店设计领域的标杆——CCD香港郑中设计事务所亲笔执笔。其精髓在于,将“酒店式的归家礼序”与“俱乐部式的圈层生活”融为一体,让每日“回家的路”,进阶为一场贯穿始终的、极具仪式感的生活体验。

为让公区真正成为业主家庭的延伸与生活聚场,设计团队针对高净值人群的真实生活轨迹,精准定制了全维功能场景:


雅集共聚区:奢华的舞蹈录音室与学习阅读等多功能空间,为圈层交流与家庭娱乐提供了理想场域。

这方藏于地下的心奢之境,不仅是项目硬核实力的彰显,更是为中粮·北外滩壹号的业主,构建了一个真正属于他们的、静谧而尊贵的“第二客厅”。

景观设计以「拾光映象」理念,用镜面水景、古木纹石材与艺术雕塑,重构源福里往昔的街巷记忆。

整体规划一横两纵三大轴线, 串联高层住区、文化保护别墅区、新海派风貌别墅区,通过不同设计语言形成“新旧交融”的空间节奏——高层区以现代简约线条演绎都市格调,别墅区则复刻历史肌理并注入现代美学。

特别设计了八大映象典藏场景景观节点,有百年梧桐下的静谧巷道串联各景观节点,还有充满文化积淀的海派艺术庭院等,营造出精致、典雅的高阶生活氛围。

通过棋盘式巷弄布局串联公共与静谧区域,利用庭院,露台、下沉式花园等打造多层次空间,营造“建筑可阅读、城市可漫步 ”的高定体验,享受“进退有度”的海派私属生活。

归家社区大堂、大堂廊厅、以及入户大堂都彰显出社区高水准的海派高定设计语言,归家仪式感满满~
这一切共同构筑了一个将功能、美学与自然无界融合的高品质生活场域,更是都市精英人群未来的丰富生活剧场!
约270°环幕大边厅尺度感十足!高区直面陆家嘴城市天际线+黄浦江景观,视野相当震撼!中厨+西厨岛台、客餐厅+阳台面积近约53㎡,不失为一个超棒的家庭休闲空间!

据了解,即将开放的约228㎡样板间,也是一比一兑现实景,精装标准展现超绝产品实力!感兴趣的朋友可以预约参观起来~
例如宝格丽大理石打造的西厨岛台、铂浪高的净水三合一水龙头和一体式大水槽、霍尼韦尔的前置过滤器、全屋软水以及末端净水器系统、来自意大利的燃气热水器品牌法罗力、德国唯宝卫浴、当代龙头及花洒等等顶豪超配精装皆在眼前!甚至还有全屋华为智能家居系统配置,


「中粮·北外滩壹号」坐落于虹口北外滩核心历史风貌区,这里与外滩、陆家嘴共同构成上海“黄金三角”,是中心城区最后一块大规模开发的滨水区域,未来板块住宅价值稀缺性不言而喻!
作为上海“世界级会客厅”核心,北外滩总开发体量达840万㎡,规划2035年GDP突破3000亿元。约480米的浦西第一高楼北外滩中心已破土而出、约320米的白玉兰广场顶层观景台已开放、北外滩来福士已建成运营……世界会客厅成为举办高端会议会展的全球会客厅,区域影响力不容小觑!
目前的北外滩已构建起以航运和金融为双引擎 的现代化产业体系,已汇集4700余家港航企业、2100余家金融机构,资产管理规模超过8万亿元。已从昔日的老码头和航运一条街,蜕变为一个初具规模的未来都市发展新标杆!
项目步行可至北外滩核芯商业来福士广场、滨江步道等,半径约2.5km覆盖外滩、陆家嘴、瑞虹、苏河湾等顶层繁华配套!饭后在贯通开放的3.4公里滨水岸线公顷中央绿轴中休闲漫步,将是日常生活的一部分,未来丰富惬意生活方式令人艳羡!

交通方面:北外滩地区位于虹口区南部,河南北路、海宁路-周家嘴路、大连路、黄浦江-苏州河围合区域,116街坊项目距离4/12号线米,出行非常方便!

周边有海上海商业街,宝地广场,滨江国际广场、来福士广场以及开发商自有商业综合体东方渔人码头等,让你的未来生活更加便利!

另外,地块距离黄浦江直线距离仅约几百米,步行可达北外滩滨江绿地公园,与陆家嘴隔江相望;除此之外,


地块周边知名学校众多,拥有全龄段的学校在附近:临潼路幼儿园、舟山路幼儿园、飞虹路幼儿园、保定路第一小学、长青学校、上海市市东中学、上海市霍山学校、上海市市东实验学校、澄衷初级中学、继光高级中学等等。*关于教育资源的报道及介绍,并不表示开发商对此提供保证。学校开学时间、招生条件、收费标准及招生区域等须以政府及学校最新政策为准。

平台声明:该文观点仅代表作者本人,搜狐号系信息发布平台,搜狐仅提供信息存储空间服务。

联系我们
电话:400-123-4567
手机:138 0000 0000

公司地址
地址:广东省广州市天河区88号

公司名称
棋牌平台